Rif: 150
TORINO
TORINO - zona Santa Rita
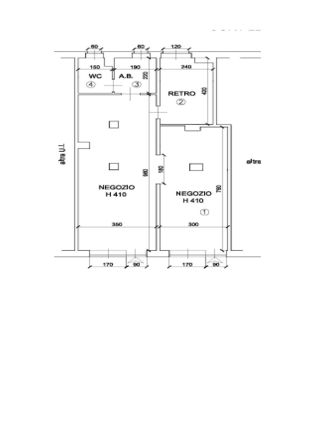
Vendiamo locale commerciale con 2 vetrine su corso Agnelli di circa 80 mq. totalmente ristrutturato.
Dagli infissi in alluminio satinato con doppio vetro camera, alle serrande traforate automatizzate, pavimenti gres porcellanato effetto legno chiaro a pavimento, contro soffitti in cartongesso con luci led, impianto elettrico certificato, bagno interno finestrato con doccia rifatto a nuovo sia rivestimento che impianto idrico, 2 split climatizzatori freddo/caldo, porte interne sostituite, finestre interno cortile nuove in Pvc doppio vetro con grate antintrusione.
Internamente suddiviso da 2 grandi ambienti principali lato vetrine, uno studio nel retro, antibagno/ripostiglio e servizio.
Riscaldamento centralizzato con valvole, stabile signorile con portineria.
Non esitate a contattarci per una breve "intervista" telefonica oppure vi aspettiamo nel nostro studio sito in Torino - via Tunisi 61/a. Contattateci ai numeri fissi: 011.301.79.53 - 011.720.55.56 e mobile 348.370.63.82.
Dagli infissi in alluminio satinato con doppio vetro camera, alle serrande traforate automatizzate, pavimenti gres porcellanato effetto legno chiaro a pavimento, contro soffitti in cartongesso con luci led, impianto elettrico certificato, bagno interno finestrato con doccia rifatto a nuovo sia rivestimento che impianto idrico, 2 split climatizzatori freddo/caldo, porte interne sostituite, finestre interno cortile nuove in Pvc doppio vetro con grate antintrusione.
Internamente suddiviso da 2 grandi ambienti principali lato vetrine, uno studio nel retro, antibagno/ripostiglio e servizio.
Riscaldamento centralizzato con valvole, stabile signorile con portineria.
Non esitate a contattarci per una breve "intervista" telefonica oppure vi aspettiamo nel nostro studio sito in Torino - via Tunisi 61/a. Contattateci ai numeri fissi: 011.301.79.53 - 011.720.55.56 e mobile 348.370.63.82.
Consistenze
| Descrizione | Superficie | Sup. comm. |
|---|---|---|
| Principali | ||
| Negozio - piano terra | 82 Mq | 82 Mqc |
| Totale | 82 Mqc | |











